132 Mapes AveNewark City, NJ 07112
Due to the health concerns created by Coronavirus we are offering personal 1-1 online video walkthough tours where possible.




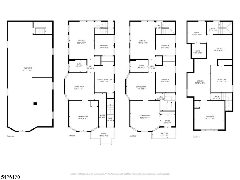
Turnkey opportunity with strong upside perfect for first-time buyers or savvy investors. This well-maintained multi-level home features a classic exterior with a covered front porch and a private entry, offering both charm and functionality. Inside, you'll find sun-filled living spaces, a flexible layout, and generously sized rooms that can easily adapt to today's lifestyle needs whether that's working from home, creating rental income, or hosting guests. The property includes a private driveway and a green front yard, adding rare outdoor space for relaxing or entertaining. Separate entrances and layout potential make this an ideal option for multiple-household use or value-add improvements. Conveniently located near major transportation, shopping, and dining, this home offers the perfect mix of comfort, location, and long-term investment potential. Don't miss the chance to make it yours!
| 22 hours ago | Listing updated with changes from the MLS® | |
| yesterday | Listing first seen on site |
The data relating to real estate for sale on this website comes in part from the IDX Program of Garden State Multiple Listing Service, L.L.C. Real estate listings held by other brokerage firms are marked as IDX Listing. Notice: The dissemination of listings on this website does not constitute the consent required by N.J.A.C. 11:5.6.1 (n) for the advertisement of listings exclusively for sale by another broker. Any such consent must be obtained in writing from the listing broker. This information is being provided for Consumers' personal, non-commercial use and may not be used for any purpose other than to identify prospective properties consumers may be interested in purchasing. Information deemed reliable but not guaranteed. Copyright © 2026 Garden State Multiple Listing Service, L.L.C. All rights reserved.
